×
Photo 1

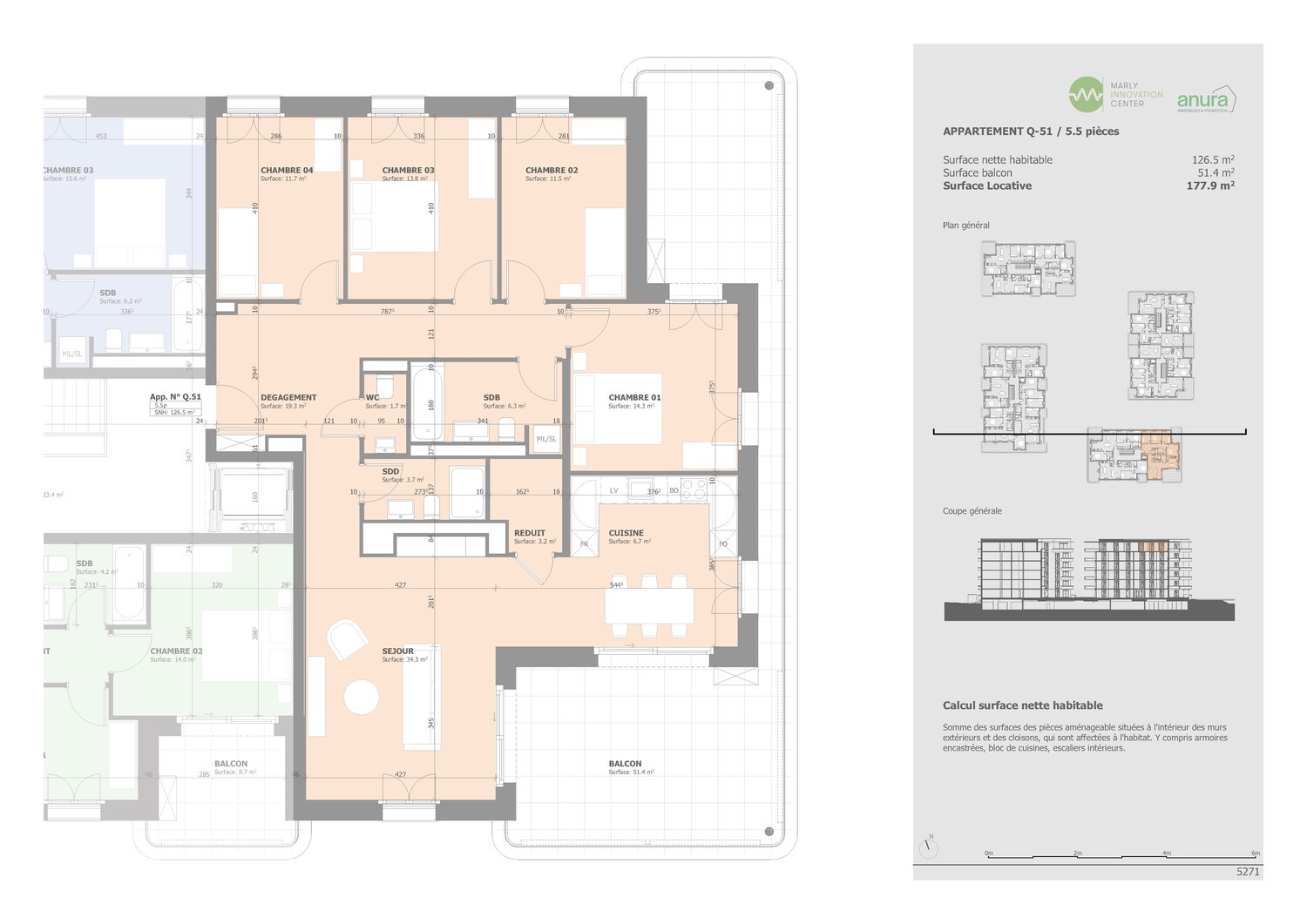
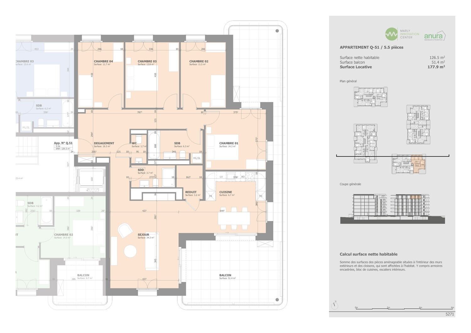
Descriptif

Ces superbes appartements de haut standing situés au cur du nouvel écoquartier de la Prairie à Marly allient confort, qualité et cadre de vie agréable. Vous profitez d'une proximité idéale avec les commerces, restaurants, écoles, crèche, piscine et arrêts de bus (ligne 8 avec cadence toutes les 15 minutes vers Fribourg et Corminboeuf).

Composition :

  • Hall d'entrée avec armoire murale
  • Cuisine semi-ouverte et entièrement équipée
  • Spacieux séjour lumineux
  • Grand balcon avec vue sur les Préalpes
  • Chambre parentale donnant accès à un second balcon
  • 3 chambres supplémentaires
  • Salle de bain en marbre avec colonne de lavage
  • Salle de douche
  • WC séparé
  • Réduit
  • Cave privative avec prise
Il est possible de louer une place de parc intérieure pour CHF 130.00 par mois.

Les immeubles offrent :

  • Une hauteur sous plafond de 2,60 m
  • Des stores électriques, fibre optique et domotique
  • Le chauffage au sol, triple vitrage, ventilation double flux
  • Un ascenseur, panneaux solaires et chauffage à distance
  • Des espaces verts et potagers partagés favorisant convivialité et qualité de vie
Cadre de vie et emplacement :
Idéalement situés entre un coteau boisé et les rives paisibles de la Gérine, les immeubles de la Prairie bénéficient d'un environnement calme et verdoyant. Des espaces extérieurs bien aménagés, une salle commune et des lieux de rencontre créent une atmosphère chaleureuse. Vous profitez ainsi d'un cadre moderne et durable, en parfaite harmonie avec la nature, tout en étant à quelques minutes du centre de Fribourg.

Intéressé(e) ? Contactez-nous dès maintenant pour une présentation des plans.

Formulaire de contact

facultatif