×
Photo 1

Descriptif

Venez découvrir des appartements de standing au cur du nouvel écoquartier de la Prairie à Marly. Ce cadre de vie moderne et agréable vous offre un environnement calme, tout en étant à proximité de toutes les commodités : commerces, restaurants, écoles, crèches, piscine et transports publics (ligne 8, passage toutes les 15 minutes vers Fribourg et Corminboeuf). Un lieu idéal pour combiner confort, nature et praticité au quotidien.

Un agencement pensé pour votre confort :

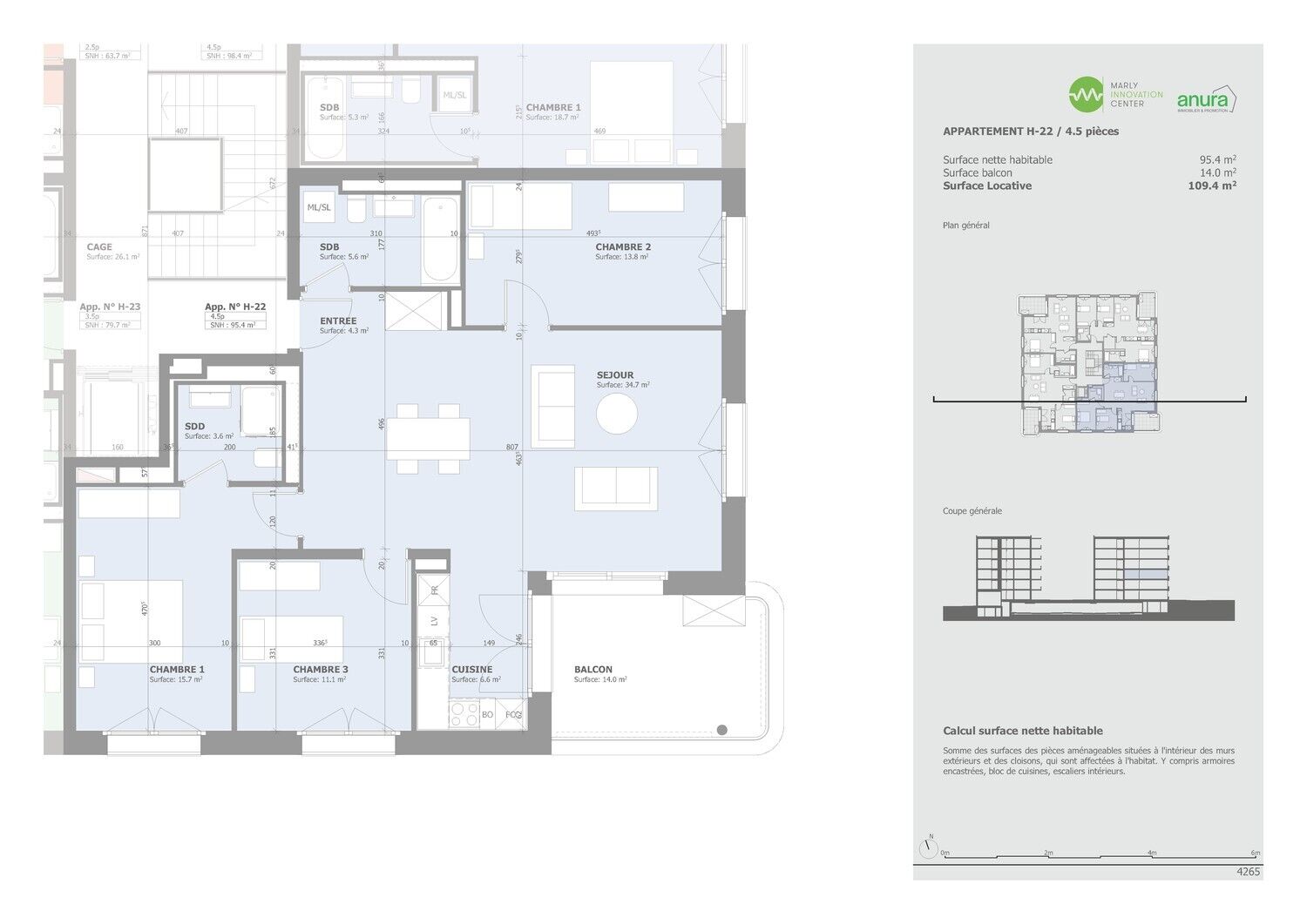
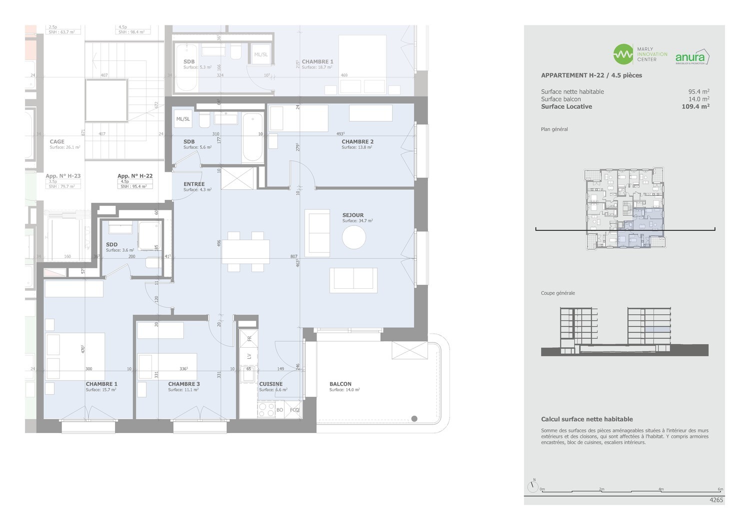
  • Hall d'entrée spacieux avec armoire murale
  • Cuisine en angle semi-ouverte, entièrement équipée
  • Séjour lumineux
  • Balcon couvert
  • Chambre avec salle de bain attenante et colonne de lavage
  • 2 chambres supplémentaires
  • Salle de douche
  • Cave privative avec prise électrique
Il est possible de louer une place de parc intérieure pour CHF 130. par mois.

Des prestations haut de gamme :

  • Hauteur sous plafond de 2,60 m
  • Stores électriques, fibre optique et domotique
  • Chauffage au sol, triple vitrage, et ventilation double flux
  • Ascenseur, panneaux solaires, et chauffage à distance
  • Espaces verts et potagers partagés pour renforcer la convivialité
Un cadre de vie privilégié :

Au cur de l'écoquartier, ces appartements bénéficient d'un emplacement idéal, entre un coteau boisé et les paisibles rives de la Gérine. Profitez de cet environnement verdoyant, tout en étant à seulement quelques minutes du centre de Fribourg. Les espaces extérieurs, la salle commune et les lieux de rencontre créent une atmosphère chaleureuse, idéale pour se détendre et partager des moments de convivialités.

Disponible de suite ou à votre convenance. Ces appartements sont déjà disponibles pour cet automne.

Curieux d'en savoir plus ? Contactez-nous dès aujourd'hui pour découvrir les plans et organiser une visite personnalisée !

Formulaire de contact

facultatif